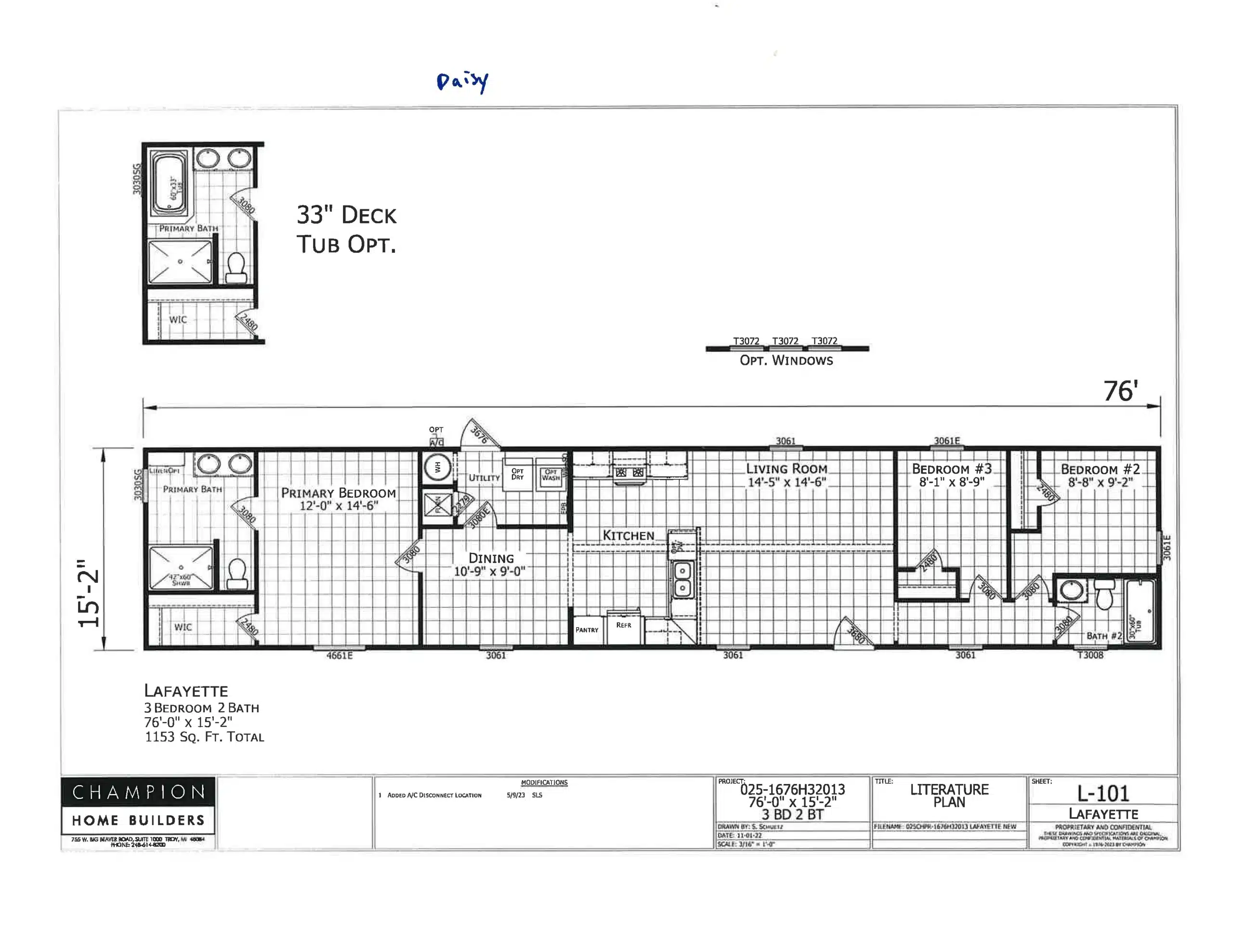
Daisy

1,153 sq ft

The Daisy is a clean, considered layout that feels open without feeling oversized. Natural light moves easily through the living spaces, while the kitchen and bedrooms are designed to do their jobs well, no fluff, just features that make everyday life easier and more comfortable.

Home Features

  • Open-concept kitchen, dining, and living areas that keep things flowing naturally
  • Decorative high-set windows that brighten the space without sacrificing privacy
  • Warm white oak cabinetry paired with crisp counters for a fresh, clean look
  • Long-lasting Whirlpool stainless appliances for a clean, modern look
  • Spacious primary suite with room for a king bed and full furniture set
  • Spa-style bathroom with double vanities, a soaking tub, and a glass-enclosed shower
  • Energy-efficient design with insulated thermopane windows throughout

Apply Today

The American Dream Awaits with Resort Style Living & Modern Homes in Pearland, Texas.

Calculate Expected Mortgage

Interested in living in our community and want to know how much your expected mortgage payment would be? Use our mortgage calculator and see just how affordable luxury can be.

Apply Today

become a homeowner

The American Dream Awaits with Resort Style Living & Modern Homes in Pearland, Texas.