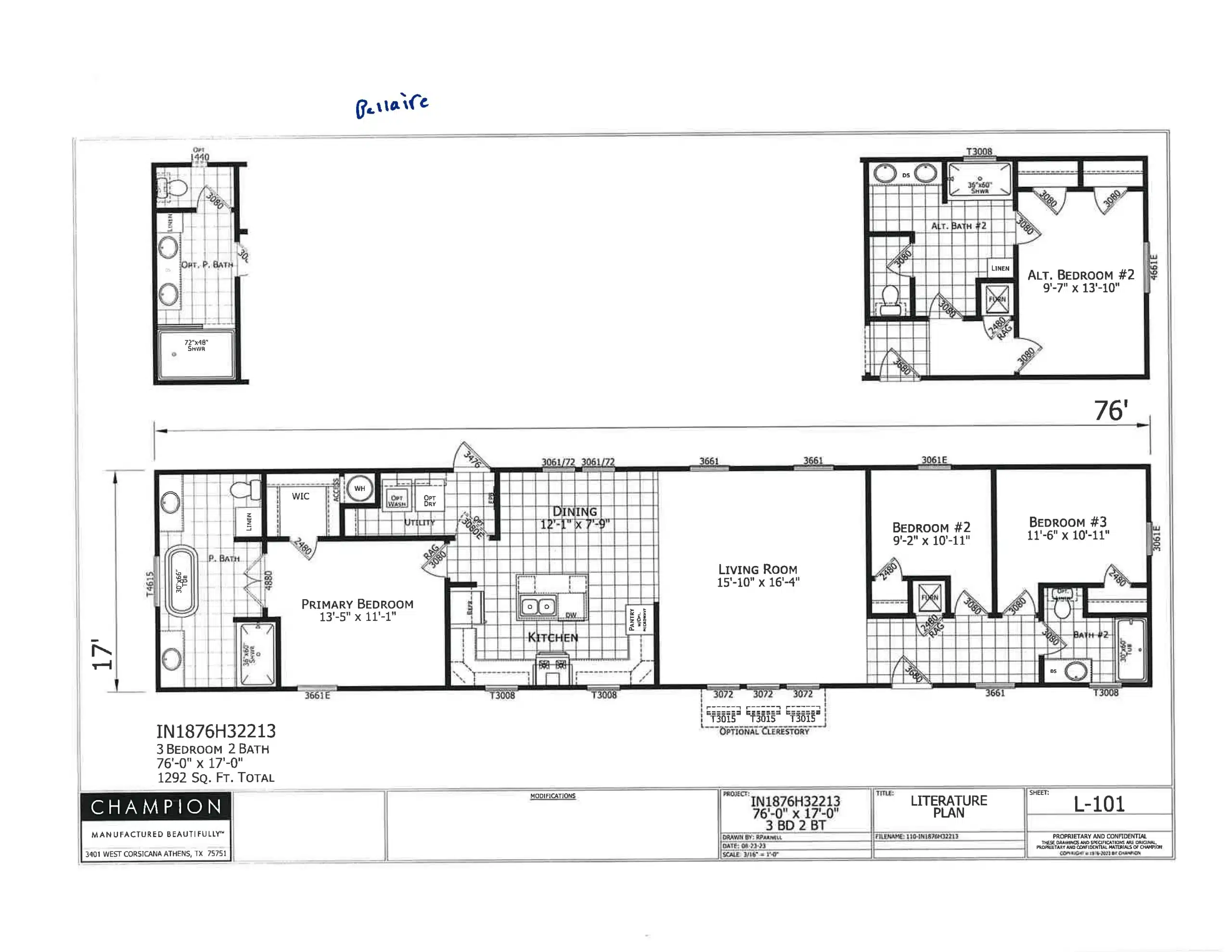
Bellaire

1,292 sq ft

This polished home blends everyday function with elevated design, offering lasting quality in a space that feels both refined and livable. With energy-efficient features and standout finishes, it’s built for comfort that looks as good as it lives.

Home Features

  • Vaulted ceilings with crown molding add height and a finished, high-end feel
  • Decorative clerestory upper windows bring in soft, natural light
  • Island kitchen with taupe cabinetry, subway tile backsplash, and room to gather
  • Stainless farmhouse sink and built-in microwave blend utility with clean, modern style
  • Dual-sink vanity, soaking tub, and tiled shower offer spa-style comfort in the primary bath
  • Energy Star certified with thermopane windows for comfort and efficiency year-round

Apply Today

The American Dream Awaits with Resort Style Living & Modern Homes in Pearland, Texas.

Calculate Expected Mortgage

Interested in living in our community and want to know how much your expected mortgage payment would be? Use our mortgage calculator and see just how affordable luxury can be.

Apply Today

become a homeowner

The American Dream Awaits with Resort Style Living & Modern Homes in Pearland, Texas.